Entrepôt et appartement Centre Neuville sur Saone 260 m2 habitable
Prix
65 900 €
Ref 350HP
- file:///Users/pelisson/Documents/TRANSACTION/Etude de valeurs/TRIQUET Pascale/Hangar/Photos/Visite 3D_neuvile rdc et r 1.html
-
-
-
-
-
-
-
-
-
-
-
-
Description de l'offre
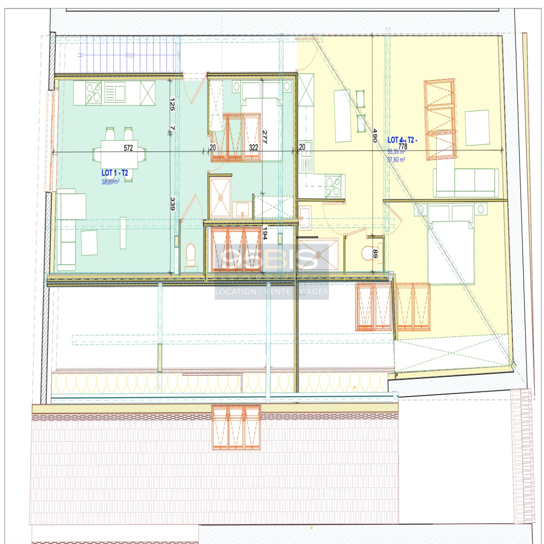
Sous compromis - VENTE A TERME LIBRE. La vente à terme libre aussi appelée crédit vendeur, permet l'acquisition d'un bien sans emprunt bancaire. L'acquéreur a la jouissance immédiatement. Eléments financiers : Capital à verser au moment de l'acquisition 65.900€, puis 180 mensualités de 1.194,45€, indexées une fois par an sur l'indice de référence des loyers. Possibilité à tout moment de solder les mensualités sans frais. Le bien peut également être acheté en transaction classique 280.900€ honoraires d'agence inclus. Le bien : centre Neuville sur Saone. Sur un terrain de 225 m2, "immeuble à usage d'habitation" d'environ 260 m2 habitable, comprenant un entrepôt avec au rez de chaussée environ 150 m2, au 1er niveau environ 75 m2, un appartement d'environ 40 m2 contigu à l'entrepôt, et une courette de 15 m2. Ce bien peut être traité en rénovation pour faire une maison ou plusieurs appartements. Exemple de proposition en 5 logements dans les visuels. Possibilité de mise en relation avec un cabinet en maîtrise d'oeuvre qui a déjà des propositions établies.
Description du bien
1
Pièce
| Label | Value |
|---|---|
| Code postal | 69250 |
| Surface habitable (m²) | 260 m² |
| surface terrain | 225 m² |
| Nombre de pièces | 1 |
| Nombre de niveaux | 2 |
| Label | Value |
|---|---|
| Mode de chauffage | Gaz de ville |
| Type de chauffage | Autre |
| Format de chauffage | AUTRE |
| Label | Value |
|---|---|
| Copropriété | NON |
| Label | Value |
|---|---|
| Prix de vente honoraires TTC inclus | 65 900 € |
| Taxe foncière annuelle | 871 € |
| Label | Value |
|---|
Contacter l'agence
* : Les informations recueillies sur ce formulaire sont enregistrées dans un fichier informatisé par La Boite Immo agissant comme Sous-traitant du traitement pour la gestion de la clientèle/prospects de l'Agence / du Réseau qui reste Responsable du Traitement de vos Données personnelles.
La base légale du traitement repose sur l'intérêt légitime de l'Agence / du Réseau.
Elles sont conservées jusqu'à demande de suppression et sont destinées à l'Agence / au Réseau.
Conformément à la loi « informatique et libertés », vous disposez des droits d’accès, de rectification, d’effacement, d’opposition, de limitation et de portabilité de vos données. Vous pouvez retirer votre consentement à tout moment en contactant directement l’Agence / Le Réseau.
Consultez le site https://cnil.fr/fr pour plus d’informations sur vos droits.
Si vous estimez, après avoir contacté l'Agence / le Réseau, que vos droits « Informatique et Libertés » ne sont pas respectés, vous pouvez adresser une réclamation à la CNIL.
Nous vous informons de l’existence de la liste d'opposition au démarchage téléphonique « Bloctel », sur laquelle vous pouvez vous inscrire ici : https://www.bloctel.gouv.fr
Dans le cadre de la protection des Données personnelles, nous vous invitons à ne pas inscrire de Données sensibles dans le champ de saisie libre.
Ce site est protégé par reCAPTCHA, les Politiques de Confidentialité et les Conditions d'Utilisation de Google s'appliquent.
Bien précédent
m² Voir le bien
Bien suivant
m² Voir le bien
